Проекты и решенияВнедренные проектыСпортивная школa
Рекомендации по построению систем пожарной автоматики в соответствии с СП 484.1311500.2020 изм.1
Автоматизация проектирования BolidCAD
Оборудование Болид в Едином реестре российской радиоэлектронной продукции
Приглашаем принять участие в опросе

Спортивная школa

Спортивная школa

Исполнитель:
ООО "НИИТ Групп"

Выполненные работы по проекту:
  • разработка проекта
  • эксплуатация, обслуживание
Детский спортивный комплекс.Пяти этажное здание расположенное в г.Москва
Адрес объекта: Россия, г Москва, ул.Седова 12

Тип объекта: Учреждение культуры, отдыха и спорта (Стадионы, музеи, галереи, театры, ДК)

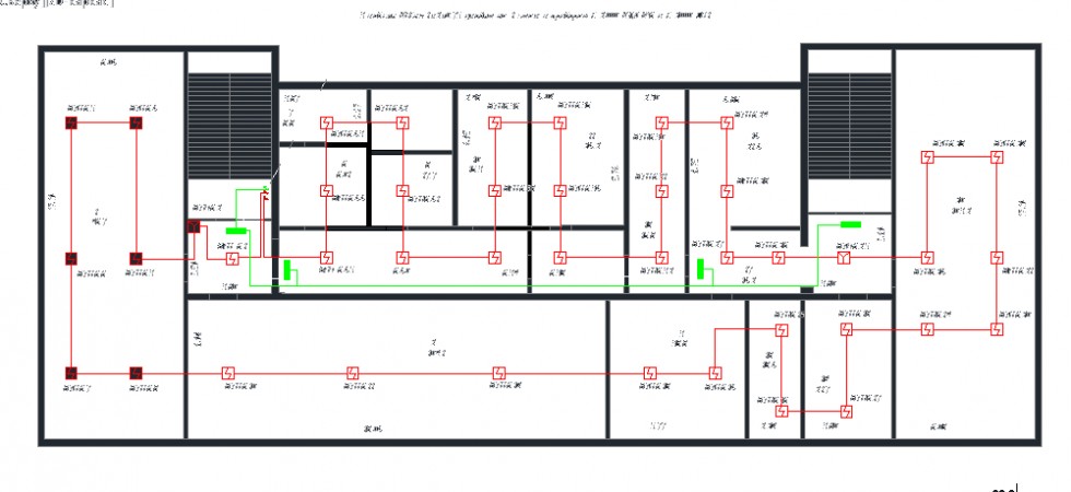
На объекте установлен АРМ ОРИОН он контролирует пять этажей здания спорт комплекса и подвал.Каждый этаж здания контролируется своим блоком С 2000КДЛ.Так же к каждому этажу здания привязан С 2000СП1,который в случае тревоги включает систему оповещения о пожаре(Сирены и Лампы).С аудио выхода ПК охраны на стойку оповещения проключен кабель связи.Это сделано для того чтоб сообщение о пожаре на стойку оповещения приходило в автоматическом режиме.

Для реализации проекта была использована следующая продукция

Пожарная сигнализация
АРМ
шт.
Сетевой контроллер
шт.
Прибор
шт.
Извещатель
шт.
Повторитель, преобразователь интерфейса
шт.
Прочее
шт.
1
1
6
6
ИПР 513-3А
20
ДИП-34А
246
Итого:
1
1
12
266