Проекты и решенияВнедренные проектыГипермаркет техники Зарайск
Рекомендации по построению систем пожарной автоматики в соответствии с СП 484.1311500.2020 изм.1
Автоматизация проектирования BolidCAD
Оборудование Болид в Едином реестре российской радиоэлектронной продукции
Приглашаем принять участие в опросе

Гипермаркет техники Зарайск

Гипермаркет техники Зарайск

Исполнитель:
Броня

Выполненные работы по проекту:
  • разработка проекта
  • монтаж, пусконаладка
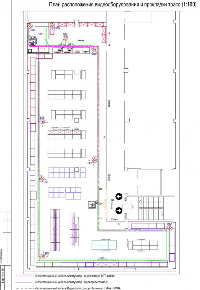
Монтаж системs видеонаблюдения в магазине электроники.
Адрес объекта: Россия, Московская обл, г Зарайск, ул. Мерецкова д.5

Тип объекта: Объект торговли (Супермаркет, магазин)

Для реализации проекта была использована следующая продукция

Охранная сигнализация
АРМ
шт.
Сетевой контроллер
шт.
Прибор
шт.
Извещатель
шт.
Повторитель, преобразователь интерфейса
шт.
Прочее
шт.
1
1
1
2
1
3
8
С2000-СВЧ
4
6
4
Итого:
1
8
18
4

Видеонаблюдение
АРМ
шт.
Сетевой контроллер
шт.
Прибор
шт.
Извещатель
шт.
Повторитель, преобразователь интерфейса
шт.
Прочее
шт.
10
1
1
1
Итого:
13