Проекты и решенияВнедренные проектыШкаф пожарной автоматики для системы газового пожаротушения УЛЛФ
Рекомендации по построению систем пожарной автоматики в соответствии с СП 484.1311500.2020 изм.1
Автоматизация проектирования BolidCAD
Оборудование Болид в Едином реестре российской радиоэлектронной продукции
Приглашаем принять участие в опросе

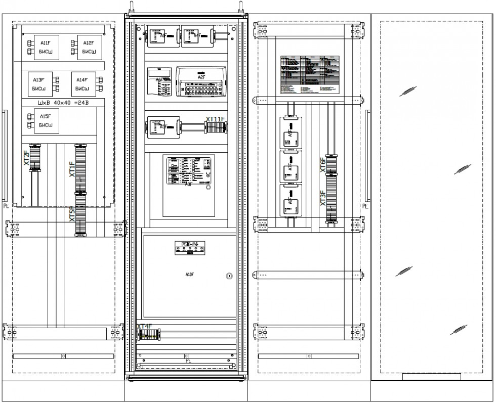
Шкаф пожарной автоматики для системы газового пожаротушения УЛЛФ

Шкаф пожарной автоматики для системы газового пожаротушения УЛЛФ

Исполнитель:
Трубачев Сергей

Выполненные работы по проекту:
  • разработка проекта
Разработка конструкторской документации шкафа пожарной автоматики для системы газового пожаротушения. Разработка конфигураций и наладка ШПА.
Адрес объекта: Россия

Тип объекта: Объект нефте, газодобычи, разработки полезных ископаемых (буровые, шахты, компрессорные)

Был разработан шкаф пожарной автоматики для системы газового пожаротушения. Алгоритмы пожаротушения реализованы с применением прибора С2000-АСПТ.

Для реализации проекта была использована следующая продукция

Пожарная сигнализация
АРМ
шт.
Сетевой контроллер
шт.
Прибор
шт.
Извещатель
шт.
Повторитель, преобразователь интерфейса
шт.
Прочее
шт.
1
1
1
3
2
1
Итого:
1
7
1

Установки пожаротушения
АРМ
шт.
Сетевой контроллер
шт.
Прибор
шт.
Извещатель
шт.
Повторитель, преобразователь интерфейса
шт.
Прочее
шт.
1
1
2
1
3
1
1
Итого:
1
8
1

Оповещение о пожаре
АРМ
шт.
Сетевой контроллер
шт.
Прибор
шт.
Извещатель
шт.
Повторитель, преобразователь интерфейса
шт.
Прочее
шт.
1
1
1
1
1
1
Итого:
1
4
1