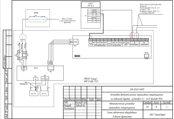
Разработка проектной документации на АПС и СОУЭ
Адрес объекта: Россия, Пермский край, г Добрянка, Бригада № 25 ТОП Верхняя Кама
Тип объекта: Промышленный объект (Заводы, фабрики, предприятия)
Для реализации проекта была использована следующая продукция
| Установки пожаротушения |
|---|
АРМ шт. | Сетевой контроллер шт. | Прибор шт. | Извещатель шт. | Повторитель, преобразователь интерфейса шт. | Прочее шт. |
|---|
| 1 | 4 5 1 | 2 | | |
| Итого: | 1 | 10 | 2 | | |